Котел КВм 1.5 МВт с ТЛПХ в Монголии
Цена котла КВм 1.5 МВт с ТЛПХ в Монголии 5 900 000 рублей
Модель с механической топкой прямого хода с ленточным колосниковым полотном ТЛПХ
Может применяться как аналог котла Гефест бийского котельного завода
Производится из трубы сталь 20, обеспечивающей устойчивость к коррозии, высокую теплопроводность и прочность конструкции
Отапливаемая площадь помещения от 12500 до 16500 м2, отапливаемый объем от 37500 до 49300 м3.
Температура до 115 °С.
| Марка | Котел КВм | Гидравлическое сопротивление при перепаде t, МПа (кгс/cм²) | Не более 0.07 (0.7) |
|---|---|---|---|
| Бренд | HeatExpert | Габаритные размеры котельного блока, длина*ширина*высота, мм | 3042х1875х2685 |
| Вид топки | Топка ТЛПХ | Габаритные размеры котла с топкой, длина*ширина*высота, мм | 4345х1875х3340 |
| Максимальная тепловая мощность, МВт | 1.5 | Масса, кг | 9700 |
| Максимальная тепловая мощность, кВт | 1500 | Марка котла | Котел средней мощности |
| Максимальная тепловая мощность, Гкал | 1.29 | Тип котла | Водогрейный, Промышленный |
| КПД (УГОЛЬ), не менее, % | 80 | Тип отопительного котла | Твердотопливный |
| Аэродинамическое сопротивление, Па (мм. вод. ст.) | 230 | Расход топлива среднечасовой за отопительный сезон, кг/ч | 148 |
| Температура уходящих газов, °C | 220 | Количество контуров | Одноконтурный |
| Расход топлива при максимальной нагрузке котла (УГОЛЬ), кг/ч | 297 | Размещение | Напольный |
| Расход теплоносителя среды, м³/ч | 52 | Тип камеры сгорания | Открытый |
| Расход условного топлива, кг/ч | 222 | Управление | Электронное |
| Отапливаемая площадь, м² | 12500-16500 | Принцип работы твердотопливного котла | Классический |
| Отапливаемый объем, м³ | 37500-49300 | Энергонезависимый | нет |
| Топливо | Уголь, Твердотопливный | Тип питания | Трехфазное |
| Тяга | Уравновешенная | Встроенный циркуляционный насос | нет |
| Низшая теплота сгорания топлива УГОЛЬ, кКал/кг | 5230 | Встроенный расширительный бак | нет |
| Температура воды, °C | 70-115 | Энергоэффективность | Высокая |
| Давление рабочей среды, МПа (кгс/cм²) | 0.3-0.6 |
Это устройство работает со вспомогательным оборудованием, которое приобретается отдельно. Если вы хотите сразу узнать стоимость всей установки, добавьте заинтересовавшие вас позиции в корзину. Чтобы точно расчитать стоимость доставки до вашего объекта, укажите его адрес в корзине и оправьте нам заявку. Обычно мы отвечаем в течение дня.
Котел КВм с топкой ТЛПХ
Котел КВм с топкой с ТЛПХ ленточным колосниковым полотном прямого хода
Механический котел с топкой ТЛПХ
Котел с ТЛПХ
Механическая топка котла ТЛПХ
Топка котла ТЛПХ
Колосниковое полотно топки котла ТЛПХ
Топка с ленточной колосниковой решеткой прямого хода ТЛПХ
Изготовление котлов с топкой ТЛПХ
Производство котлов с механической топкой ТЛПХ
Водогрейный котел КВм 1.5 с ТЛПХ в г Монголия. Характеристики:
- мощность 1.5 МВт, 1500 КВт, 1,29 ГКал;
- максимальная температура 95 - 115 град;
- давление 0,6 МПа;
- топка механическая с ленточным полотном прямого хода ТЛПХ;
- отапливаемая площадь котла от 12500 до 16500 кв м, отапливаемый объем от 37500 до 49300 м3 (в зависимости максимальной температуры в регионе эксплуатации). Проверить или подобрать мощность котла с топкой ТЛПХ в Монголии или любого другого города вы можете по ссылке;
- устанавливается в котельных административных и производственных зданий.
Устройство и описание
Топочная камера котла выполнена из стальных труб 57 ст 10 с вваренной стальной полосой. Конвективные секции из труб диаметром 32 сталь 20. Горячие газы выходят из топки вверху топочной камеры и поступают в конвективные секции. Секции конвективных пакетов устанавливаются двумя блоками. Горячие газы из котельного блока выходят в задней части сверху.
Водогрейный котел КВм 1.5 МВт под топку ТЛПХ поставляется в тепловой изоляции выполненной из плиты ПТЭ и стального листа. Для очистки конвективных секций в обмуровке предусмотрены лёгкосъёмные люки.
Механическая топка ТЛПХ с ленточным полотном прямого хода состоит из угольного ящика, питателя с редукторами, ленточного полотна, набираемого из чугунных колосников и системы топочных коробов, для подачи и распределения топлива под решеткой.
Циркуляция котла обеспечивает быстрый нагрев воды и выход на требуемую мощность. Локальные перегревы отдельных зон поверхностей нагрева исключаются точностью производимых расчетов гидравлики. Дренажи и воздушники производят дренирование трубной системы от шлама и удаление скапливающего воздуха.
Принцип работы водогрейного котла КВм-1.5 ТЛПХ
Топливо загружается в бункер топки ТЛПХ транспортером топливоподачи. Из бункера уголь самотеком ссыпается на чугунное колосниковое полотно. Ленточное полотно приводится в движение редуктором. По мере движения полотна, топливо на нем прогорает. При повороте полотна зола и шлак ссыпаются в канал золоудаления и транспортером перемещается за пределы котельной.
Водогрейный котел КВм-1.5 с ТЛПХ по мощности регулируется настройкой скорости движения полотна и высотой отбойной плиты в угольном ящике, чем выше отверстие, тем больше мощность.
Горячие газы, образующиеся в процессе горения угля омывают трубную систему и нагревают воду до температуры 95 или 115 градусов.
Циркуляция воды в котельном агрегате производится циркуляционным насосом. Для восполнения теплоносителя, теряемого при дренировании и в теплосети, производится подпитка подпиточным насосом.
Для горения топлива вентилятором в топку подается воздух. Дымовые газы проходят трубную систему котельного блока и поступают в газоходы котельной. В газоходах может устанавливаться золоуловитель. Для преодоления сопротивления газоходов и золоуловителя перед дымовой трубой монтируется дымосос ДН 6.3. Далее газы через дымовую трубу поступают в атмосферу.
Твердотопливный котел КВм-1.5 ТЛПХ регулируется автоматикой. Щит управления котла КВм 1.5 с ТЛПХ ограничивает предельно допустимые параметры работы, температуру и давление воды, минимальный расход теплоносителя, поддерживает минимально допустимое разряжение. Автоматика управляет скоростью движения полотна. Это время настаивается в зависимости от калорийности и фракционного состава топлива, а также температурного графика котельной.
Водно-химический режим водогрейного котла должен быть организован в соответствии с требованиями руководства по эксплуатации и нормативной литературы по тепловым энергоустановкам и тепловым сетям. Для подбора водоподготовительной установки требуется провести химический анализ воды.
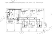
Подключение твердотопливного котла КВм 1.5 с ТЛПХ
Подключение и монтаж производятся по проекту. Ниже приведена одна из возможных схем подключения котлов с ТЛПХ.
Все котельно-вспомогательное оборудование для подключения котла 1.5 МВт с топкой ТЛПХ в Монголии вы можете купить на нашем котельном заводе. Также наш завод оказывает услуги по проектированию, монтажу, шеф монтажу и пуско-наладке котельных во всех регионах, в том числе в городе в Монголии.
Безопасность котла
Угольный котел КВм-1.5 ТЛПХ должен эксплуатироваться в соответствии с требованиями следующей документации:
- Инструкции по эксплуатации;
- Правил устройства и безопасной эксплуатации водогрейных котлов с температурой нагрева воды не выше 115 °С;
- Правил технической эксплуатации тепловых энергоустановок.
Требования к помещениям котельной регламентируются СП 89.13330.2016 «Котельные установки».
Управление механическим водогрейным котлом КВм 1,5 с топочным устройством ТЛПХ должно производиться автоматикой безопасности, имеющей сертификат соответствия.
Одним из самых важных устройств, обеспечивающих безопасную эксплуатацию водогрейного котла, является предохранительный клапан. Расчет пропускной способности для каждой мощности приведен в паспорте котла.
Гарантии изготовителя
На заводе изготовителе механический котел на угле КВм 1.5 с топкой ТЛПХ подвергается гидравлическому испытанию давлением 0,9 МПа (9 кгс/см2).
Гарантийный срок - 12 месяцев со дня ввода в эксплуатацию, но не более 18 месяцев со дня отгрузки с завода.
Гарантийное обслуживание включает в себя бесплатное устранение скрытых заводских дефектов, замену деталей и узлов вышедших из строя в период гарантийного срока при условии монтажа и эксплуатации оборудования Покупателем в соответствии с его назначением, технической документацией, техническими нормами, правилами ввода в эксплуатацию и эксплуатации данного оборудования.
Срок эксплуатации водогрейного котла 10 лет.
Чертежи котла КВм 1.5 МВт с ТЛПХ
Купить котел квм 1.5 мвт с тлпх в Монголии
Промышленный водогрейный котел КВм-1.5 с ТЛПХ ( - мощность 1.5 МВт; - твердое топливо уголь; - температура 115 градусов; - отапливаемая площадь* от 12500 до 16500 м2; - отапливаемый объем* от 37500 до 49300 м3 (* диапазон для самого холодного и самого теплого региона РФ)); - применение для отопления производства, жилых зданий, цехов, складов, промышленных предприятий.
Предлагаем вам подобрать мощность водогрейного промышленного котла по отапливаемой площади и объему, с учетом типа строения и данных о температуре в регионе и в Монголии, вида топлива.
Выбор водогрейного котла для котельной производится по каталогу отопительного оборудования нашего Котельного завода с помощью калькулятора подбора мощности. Водогрейные котлы отопления для промышленных предприятий предлагается выбрать из модельного ряда газовых, дизельных, мазутных, твердотопливных угольных и дровяных котлов, с ручными и автоматическими топками мощностью от 150 кВ до 4 МВт, и температурой нагрева теплоносителя до 115 градусов.
Подбор мощности водогрейного промышленного котла для отопления учитывает:
- температуру в самую холодную пятидневку в отопительный сезон. Для каждого региона РФ температура различна, данные берутся из СП 131.13330 «Строительная климатология»;
- тепло, необходимое для возмещения потерь тепла через ограждения, окна, двери здания и тепловые потери через не плотности строения и открываемые двери;
- температуру воздуха внутри помещений. Для различных типов и назначений строений она существенно отличается:
| Тип отапливаемого строения | Температура внутри помещения |
|---|---|
| Жилые строения и административные здания | + 20 С° |
| Больницы, детские сады | + 22 С° |
| Учебные заведения, предприятия общепита, учреждения культуры, школы | + 16 С° |
| Магазины и депо | + 15 С° |
| Кинотеатры | + 14 С° |
| Гаражи | + 10 С° |
| Бани | + 25 С° |
- объем строения. Для определения наружного объема строения площадь по наружным стенкам строения на уровне первого этажа перемножается на высоту. Для панельных домов высота определяется: от уровня пола (нулевой отметки) до верхней плоскости теплоизоляционного слоя чердачного покрытия. Для остальных зданий высота определяется от уровня земли. Подбор мощности для отопления различных по назначению строений считается отдельно. Все полученные значения мощности складываются.
Подбор мощности водогрейного промышленного котла производится для общей суммарной мощности каждого отдельно стоящего задания.
Если вам требуется подобрать мощность котла в Монголии для котельной с учетом вентиляции здания, горячего водоснабжения объекта, потерь в теплотрассе - необходимо производить более подробный расчет. Данный расчет мы можем произвести для вас бесплатно. Отправьте опросный лист и заявку на электронный адрес sale@kotel-kv.ru или позвоните по телефону 8 (800) 551-70-98.